MGA - Инвестиционна компания Контакти
Към етажа

Жилищна сграда V Park 3

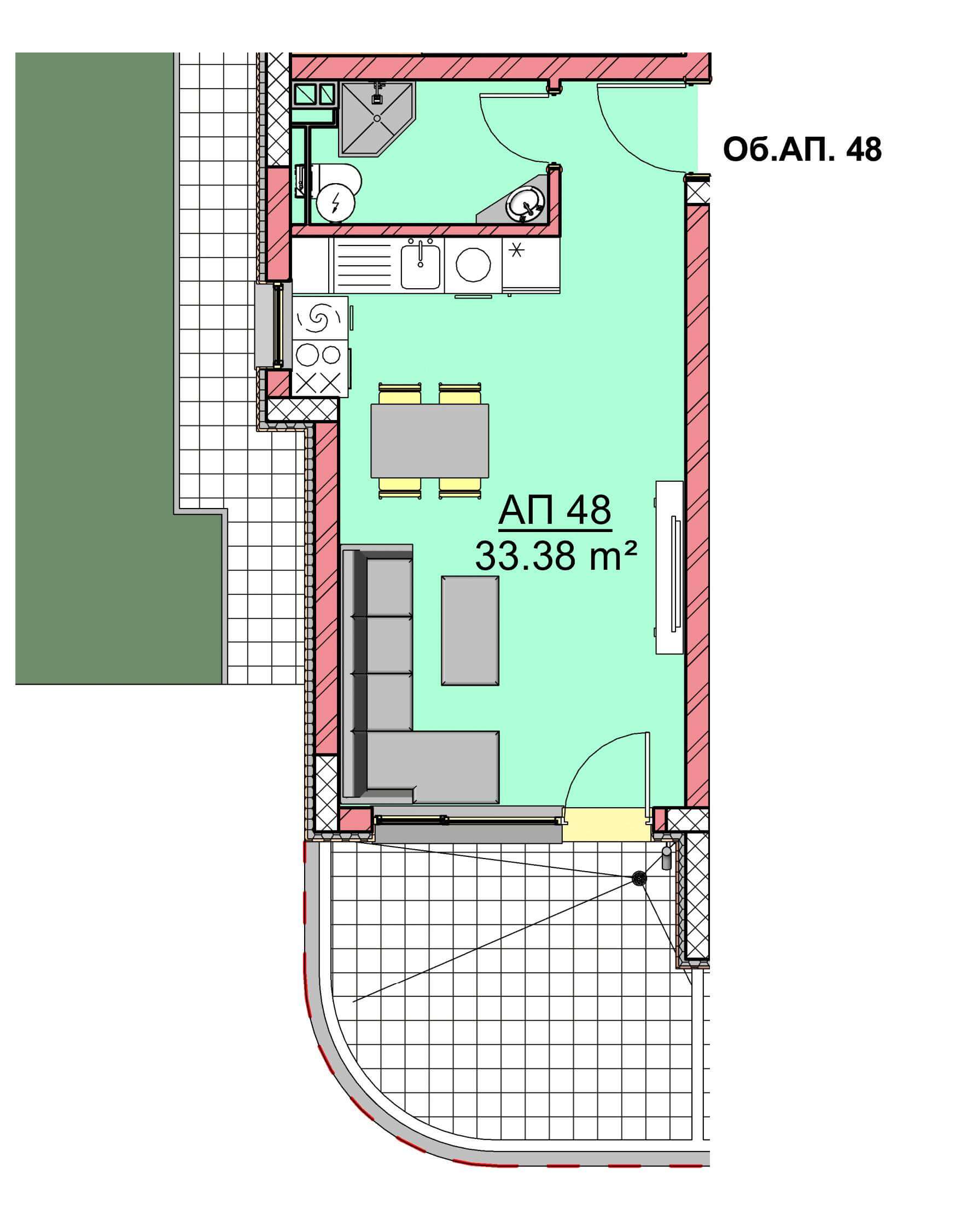
Апартамент №Б48

Етаж 1
Тип Едностаен
Чиста площ 33,38 м2
Общи части 4,71 м2
Обща площ 38,09 м2
Статус Резервиран

Апартамент- Дневна с кухненски бокс, баня с тоалетна, коридор и двор.

Жилищна сграда V Park 3
Добави в любими Премахни
Апартамент Б48 - Investment Company

Апартамент №Б48

Жилищна сграда V Park 3

Изпратете запитване за имота

  • Това поле е за целите на валидирането и трябва да останат непроменени.

* С натискането на бутона се съгласявам личните ми данни да бъдат съхранявани и обработвани за целите на сайта.

Още имоти


Последни новини

MGA Group

Първа копка на жилищна сграда Saint Nicola – старт на строителството във Варна

На 09.03 беше поставено официалното начало на новия проект Saint Nicola с тържествена церемония по първа копка. С това събитие проектът навлиза в реална фаза на изпълнение и поставя началото на една нова жилищна сграда, създадена с внимание...

12 март 2026
MGA Group

MGA Group – подкрепя ПФК Черно море

MGA Group застава зад спорта, който обединява хората, гради характер и създава общност. С гордост заявяваме, че MGA Group подкрепя ПФК Черно море – клуб с традиции, дух и вярна публика. Подкрепата ни е част от по-широката ни...

26 януари 2026
MGA Group

MGA Group подкрепя ветроходния спорт във Варна: трирична шампионска инициатива

Вятър, море и спортен дух – това са трите елемента, които обединяват MGA Group и ветроходството във Варна. Компанията застава зад българския ветроходен спорт като официален спонсор на шампионската яхта White Pearl, участник в най-престижните регати у нас....

26 септември 2025
MGA - Инвестиционна компания

Жилищна сграда V Park 3

Апартамент №Б48

Апартамент- Дневна с кухненски бокс, баня с тоалетна, коридор и двор.

Изложение:
Етаж 1
Тип Едностаен
Чиста площ 33,38 м2
Общи части 4,71 м2
Обща площ 38,09 м2
Статус Резервиран
          Жилищна сграда V Park 3
КОНТАКТИ: +359 878 11 08 88 office@mgagroup.bg Варна, ул. Д-р Николай Коларов 3 , Комплекс Дипломатик хил, ап. 6
MGA Group Дизайн & SEO от
+359 878 11 08 88 office@mgagroup.bg Варна, ул. Д-р Николай Коларов 3 , Комплекс Дипломатик хил, ап. 6